愛犬の幸せと私の暮らしやすさを両立。こだわりを凝縮した「中型犬と暮らす平屋」の理想動線
こんにちは、おうちのたねのおたねです。
前回の予告通り、今日は私が夜な夜なニヤニヤしながら書き上げた「中型犬と暮らす最強の妄想間取り(平屋編)」を、恥ずかしげもなく公開します!
私がお迎えしたいボーダーコリーって、愛おしいけれどパワーが凄いんです。「小型犬向けの家」では物足りないし、「大型犬向けの設備」ほど大掛かりじゃなくていい。

そんな「帯に短し襷に長し」な悩める飼い主(私)がたどり着いたのは、「犬とベタベタしたい気持ち」と「趣味と安眠を守りたい理性」が同居する、究極の平屋でした。
この妄想図面には、日々の散歩の泥汚れや、ちょっとしたイタズラ、そして将来の老犬介護まで見据えたリアルな工夫を詰め込んでいます。これから家を建てる方の、何かの「たね」になれば幸いです。
犬と暮らす平屋の間取りのコンセプトは「回遊」と「隔離」の両立
今回妄想した間取りのテーマは、相反する2つの要素を両立させることです。
- 止めない:家中どこでも走り回れる「回遊動線」でストレスフリーに。
- 入れない:誤飲事故と安眠妨害を防ぐ「鉄壁のゾーニング」で安全を確保。
「自由にさせたいけど、入ってほしくない場所もある」。このわがままな願いを叶えるために、鉛筆書きの生々しい図面をご覧ください(笑)。
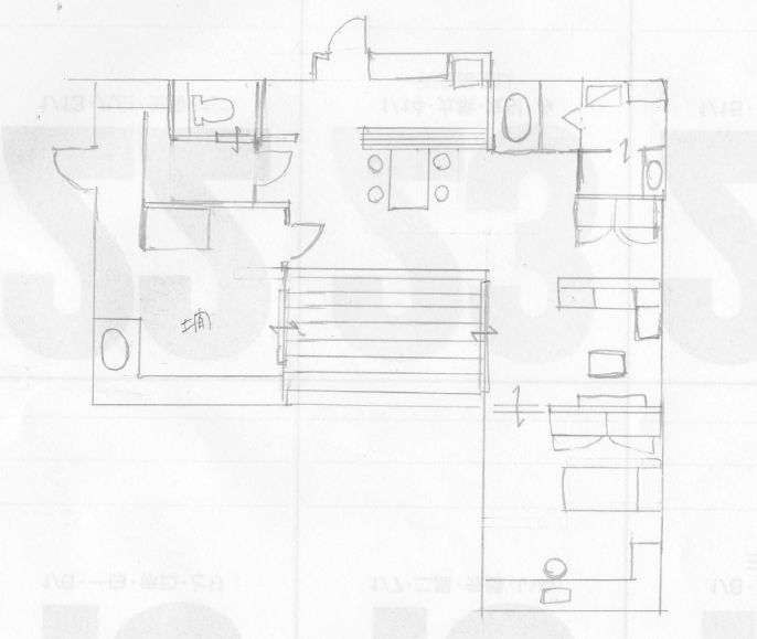
犬と暮らす平屋の間取り【図面公開】最強のL字型プラン

家の形を「L字型」にして、その懐(ふところ)に大きなウッドデッキを敷き詰めました。一見普通に見えるかもしれませんが、中型犬飼いならではの「変態的なこだわり」が詰まっています。順番に解説させてください。
犬と暮らす平屋の間取りのこだわり① 玄関土間は「泥んこ洗浄基地」
図面の左上をご覧ください。「土間」と書いてあるスペースです。ここは単なる玄関ではありません。散歩帰りの「強制洗浄ゾーン」です。
中型犬の散歩は、雨の日でも泥んこ必至ですよね。小型犬ならサッと抱っこしてお風呂場へ直行できますが、15kg前後の暴れる米俵(愛犬)を抱えて廊下を移動するのは、腰への負担が半端じゃありません。(腰、壊れます)
壁紙に泥がついたり、廊下が水浸しになったりする未来も容易に想像できます。
玄関に入って1秒でお湯が出る幸せ
だからこそ、「玄関に入って1秒でお湯が出る」ように、土間に専用の洗い場(シンク)を設置しました。ここで洗って、拭いて、乾かす。きれいになるまでリビングには絶対に入れません!
屋外の立水栓だけだと、真冬の足洗いは飼い主にとっても犬にとっても修行になってしまいます。屋内の土間にお湯が出る洗い場があるだけで、雨の日の散歩の憂鬱さが劇的に減るはずです。
| 場所 | メリット | デメリット |
|---|---|---|
| 屋外(庭) | 泥を家の中に持ち込まない | 冬は寒く、雨の日は濡れる。夜は暗い。 |
| 浴室 | お湯が出る、全身洗える | 抱っこ移動が必要。廊下が汚れるリスク大。 |
| 土間(屋内) | お湯が出る、濡れない、移動ゼロ | 設置コストがかかる、土間スペースが必要。 |
ここで洗い場の高さをどうしようかという悩みも出てきました。(実際に建てるわけでもないのにここまで悩む?)
洗面台くらいの高さに洗い場があると、人もワンちゃんの身体が洗いやすいのでは?と思う訳です。が、しかし。その高さにワンちゃんを持ち上げる?20kg近くあるボーダーコリーを?
う~ん。今ならそれもできるけど、私も歳をとっていきますからねぇ。そんなことを思いながら、世の中のトリマーさんたちはどうしているのかと思ったら

ほら。シンクに扉が付いてるんですね~。なるほど~。という訳で、私の妄想の平屋にもこれを導入することにしました。(#^^#)
犬と暮らす平屋の間取りのこだわり② リビングと庭をつなぐ「無限ループ」
リビング(図面右側)の掃き出し窓を開け放つと、そこには広大なウッドデッキ(ガーデンリビング)が広がります。この間取りの真骨頂は、ここから生まれる動線にあります。

行き止まりのない回遊動線
私がイメージしているのは、以下のようなループです。
- リビングからデッキへ飛び出す
- デッキ~庭を爆走する
- デッキに戻り土間から(またはリビング側)から戻ってくる
この「行き止まりのない回遊動線」こそが、運動量豊富なボーダーコリーのストレスを解消する鍵です。家の中で鬼ごっこをしても、袋小路に追い詰められることがないので、犬もパニックになりません。
ただし、土間とDKとの間の扉を開けておく必要はありますけども。
キッチンは司令塔(コックピット)
私はキッチン(コックピット)から、庭で走り回る愛犬を優雅に眺めつつ、料理をする…というのが理想の休日です。キッチンは部屋全体を見渡せる位置に配置し、料理中も「今、何してるかな?」とすぐに確認できるようにしました。
そのためにもDKとデッキの間ははめ込みガラスがいいかなと思っています。
勝手口という名の「裏ルート」
キッチンの横には「勝手口」もしっかり確保しています。これは単なるゴミ出し用ではありません。
- 買い出しの荷物の運搬ルート
- 大きなドッグフードの袋
これらを、玄関(表玄関)を通さずに直接パントリーやキッチンへ運び込める「裏ルート」として活躍してもらいます。
犬と暮らす平屋の間取りのこだわり③ 趣味部屋は「犬・立入禁止」の聖域
図面の下側、寝室エリア。ここはあえて「犬が入れないエリア」にしました。愛犬家失格? いえいえ、これには深い理由があるのです。
理由1:誤飲防止という安全対策

私は趣味で手作り制作をするのですが、細かいパーツや道具を扱います。もし作業中に小さな部品を落としてしまい、愛犬がそれを誤飲したら大変です。
誤飲は命に関わります いちいち完璧に片付けずに「作業途中で放置してご飯を食べに行きたい」という私のズボラ心もありますが(笑)、物理的に入れない部屋を作ることは、愛犬の命を守る確実な方法でもあります。
理由2:安眠確保と衛生管理

「疲れたらそのままベッドへダイブしたい!」 いくら愛犬が可愛くても、毛だらけのベッドではなく、清潔なシーツで泥のように眠りたい日もあるのです。特にボーダーコリーは抜け毛の量も多いですし、寝返りの振動も大きいですからね。
「かわいそう?」いいえ、メリハリです。ここでしっかり休んで英気を養うからこそ、リビングに行った時は全力で愛犬と遊べるのです。
妄想だからこそ妥協しない!「床・壁・電気」のマニアックな仕様
間取りの形と同じくらい、いや、それ以上に重要なのが「素材選び」です。中型犬の爪の音、抜け毛、そして時々起こる粗相…。これらに耐えうる最強のスペックを、予算度外視で(妄想なので!)選定しました。
でも私の理想は、しっかりしつけを入れて(妄想の中ではドッグスクールに通う前提です)、無駄吠えもなくトイレトレーニングもちゃんとできる子になっている…予定です。(^_^;)
床材は「全面サーモタイル」が私の最終結論
床材選びは「滑りにくさ」と「掃除のしやすさ」、そして「見た目」の戦いです。フローリング、クッションフロア、カーペット…いろいろ比較検討した結果、私がたどり着いた答えは「LDK全面サーモタイル張り」です。
| 床材 | 滑りにくさ | 掃除・耐久性 | おたねの判定 |
|---|---|---|---|
| 一般フローリング | ×(危険) | △(水に弱い) | 絶対にNG。ヘルニア一直線。 |
| ペット用フローリング | ○ | ○ | コスパ良し。でも「木」はいずれ傷つく。 |
| タイルカーペット | ◎(最強) | △(毛が絡む) | 寝室や廊下には採用したい。 |
| サーモタイル | ◎ | ◎(無敵) | これぞ理想!夏はひんやり、冬は床暖房で天国。 |

サーモタイルは、タイルの熱流束(熱が伝わる速度)を小さくすることで、ヒンヤリ感を軽減できる素材で、浴室や洗面所によく使われるようですね。
サーモタイルは初期費用が高いですが、犬が走り回っても傷がつかず、粗相をしても染み込みません。何より、夏場はひんやり冷たいので、暑がりなボーダーコリーにとっては家全体が巨大なクールマットになります。冬は床暖房を入れれば、岩盤浴のような心地よさ…。
「愛犬の関節を守るため」です!
でもこれって人間も心地いいのでは?と思っています。
壁紙は「腰の高さ」で切り替えるのが正解
中型犬が興奮して壁をガリガリ…。帰宅したら壁紙が剥がされていた…。そんな悲劇を防ぐために、壁の仕様も工夫します。
- 腰壁(高さ120cmまで): 傷に強い「高耐久パネル」や「タイル」を貼る。汚れても水拭きできる素材にするのが鉄則。
- それより上: 消臭・調湿機能のある「エコカラット」や「珪藻土クロス」を採用し、ペット臭を吸着させる。
コンセントの位置に注意!
通常、コンセントは床から25cmの位置にありますが、これをあえて「床から40cm以上」に上げます。これは、オスのマーキング対策と、コードを噛まれるリスクを減らすため。「地味だけど、やってよかった!」となるはずのポイントです。

犬と暮らす平屋の間取り【最大の悩み】トイレが遠い?あえて「離れ」にした理由

この図面で一番悩んだのが「トイレの位置」です。図面を見て気づきましたか? トイレが洗面・脱衣所(水回り)から離れた、キッチン・ホール側にポツンとあることを。
「お風呂の横(脱衣所付近)にあった方が、動線的に便利じゃない?」 私も最初はそう思いました。でも、友人が遊びに来たシーンをシミュレーションしてみたんです。
「脱衣所=プライベート」を守り抜く

友人が「トイレ貸して」と言った時。もし脱衣所の奥にトイレがあったら… 「ちょっと待って!洗濯物隠すから!」と叫んで、干しっぱなしの下着を隠す未来が鮮明に見えました。
だから、あえて離しました。トイレを単独で配置することで、脱衣所という生活感満載のプライベートスペースを、来客の目から完全に守ることができます。
扉一枚が防ぐ「音漏れ」問題
キッチンとホールの間に1枚「扉」があるのもポイントです。リビング直結のトイレだと、どうしても音が気になりますよね。

この扉がワンクッションになることで、リビングへの「音漏れ」も防げます。多少の手洗い動線の悪さはありますが(トイレ内にミニ手洗い器をつければ解決!)、「プライバシー」と「音問題」の解消を優先した、大人の選択です。
15年後の未来予想図。老犬介護における平屋の真価

今は元気に庭を走り回っている愛犬も、いつか必ずシニア期を迎えます。15kgの中型犬が寝たきりになった時、あるいは足腰が弱って自力で立てなくなった時。この「平屋」の間取りが、飼い主と愛犬を救ってくれるはずです。
「抱っこなし」で移動できるフラットな動線
もし2階建てだったら…20kg近い老犬を抱えて、階段を上り下りしないといけない状況になる可能性が0ではないと思います。
犬を2階に行かせないようにする方法もありますが、私自身も歳をとりますからね。もし20kg近い愛犬を抱えるような生活が待っているとしたら、 私なら1週間で腰を痛める自信があります。
この平屋プランなら、寝室からリビング、そして庭(排泄場所)まで、一切の段差がありません。もし歩けなくなっても、台車に乗せてゴロゴロと移動させることができます。
玄関アプローチには最初からスロープを作っておけば、大型犬用のバギーもそのまま横付け可能。「抱え上げなくていい」というのは、介護生活において最大のメリットです。
温度差のない「全館空調」は命綱

シニア犬は体温調節が苦手になります。平屋はワンフロアなので、エアコン1台(または全館空調システム)で家中の温度を均一に保ちやすいのも大きな利点です。
ヒートショックのリスクを減らし、どこにいても快適な温度で過ごせる環境は、愛犬の寿命を延ばすことにも繋がると信じています。
もしもこの家で暮らしたら? おたねと愛犬の24時間ルーティン

では最後に、この妄想間取りで実際に暮らしているシーンをシミュレーションしてみましょう。ニヤニヤが止まりません。( *´艸`)
【6:30】 起床〜朝のパトロール
「朝だよ!」と愛犬が寝室に飛び込んでくる…のではなく、寝室のドアをカリカリ。「はいはい」とドアを開けると、リビングの掃き出し窓を開けてそのまま庭へ一直線。私はコーヒーを淹れながら、キッチンから庭でトイレを済ませる愛犬を見守ります。
【7:30】 散歩〜帰宅の儀式
朝の散歩から帰宅。玄関ドアを開けて、そのまま土間の足洗い場へ直行。シャワーでサッと足を洗い、タオルドライ。泥んこのままリビングに上がられるストレスはゼロ! キレイになったら、ご褒美の朝ごはんです。
私が着ていた上着も土間のハンガーにさっとかけます。
【10:00】 在宅ワークと見守り
私はダイニングテーブルで仕事。愛犬は日当たりの良いリビングの窓際でお昼寝。ふと顔を上げると愛犬の寝顔が見える。最高です。
途中、宅配便が届きましたが、玄関ホールとリビングの間のドアを閉めておいたので、吠えて飛びつくこともなくスムーズに受け取り完了。
妄想の中の愛犬はしつけがしっかり入っているので、吠えることはない…と思いますけどね。でもボーダーコリーって人が好きですから配達員の人にも飛びついていきそうですよね。(;^ω^)
仕事が一息ついたら、愛犬とちょっとお庭で遊びましょうか。ボーダーコリーは人と遊ぶのが大好き。何かやることはないか探しています。

【19:00】 夕食〜団欒
人間が夕食を食べている間、愛犬はキッチンに入れないようゲートの外でお座り。「要塞キッチン」のおかげで、つまみ食いの心配もなく落ち着いて食事の準備ができます。
【23:00】 就寝(ゾーニングの発動)
「おやすみ」と言って、私は寝室エリアへ。愛犬は土間の専用ヌックへ。ここからはお互いのプライベートタイム。
寝室のドアを閉めれば、そこは完全な静寂。愛犬の夜中の徘徊音や水飲み音で目を覚ますことなく、朝までぐっすり眠れます。このメリハリこそが、長く仲良く暮らす秘訣なのです。
犬と暮らす平屋の間取りまとめ:妄想はタダだけど、効果はプライスレス
こうして図面にしてみると、自分の譲れないポイントが見えてきました。
- 散歩後の動線は命(土間洗い場は絶対!)
- プライベートとパブリックの分離(トイレの位置・趣味部屋の隔離)
これ全部叶えたら予算オーバー確実ですが(笑)、この中の「土間の考え方」や「トイレの配置」だけでも、これから家づくりをする方の参考になれば嬉しいです。
そして私は専門的な知識は持ち合わせていないので、「この間取りだと構造上問題あり」な部分もあるかもしれません。ですがそこは「妄想」ですから…。
家づくりにおいて、動物の習性に配慮した環境を整えることは、動物愛護の観点からも推奨されています。
(出典:環境省「住宅密集地における犬猫の適正飼養ガイドライン」)
今回はボーダーコリーと共に暮らすならこんな家がいい!という私、おたねの妄想を平面図にして恥ずかしながらも公開いたしました。
こんな妄想を形にしてくれるハウスメーカーってどこかあるんでしょうか?っていうかそもそも相手にされない可能性大でしょうけれど…。
次回は、趣味の手芸に没頭できる部屋はこんなのがいい!という妄想を広げていきます。現在の現状と理想とする手芸部屋との違いや追加で出てきた「こんなのがいい」も盛り込んでいきますね。
皆さんの「ここだけは譲れない!」という間取りのこだわりも、ぜひコメントで教えてくださいね!


